VENDITA – APPARTAMENTO TRILOCALE VIA PRIVATA LASSALLE 5 – MILANO

In vendita
Milano (Chiesa Rossa/ Cermenate/ Ripamonti) - via privata lassalle , 5
338.000 €
3 locali
Categoria
67
m2
3
Locali
2
Camere
2
Bagni
Descrizione
Proponiamo in vendita un elegante trilocale completamente ristrutturato, situato all’interno di un residence signorile immerso nel verde e dotato di servizi esclusivi. Il complesso dispone di servizio di portineria per mezza giornata, offrendo un ulteriore livello di comfort e sicurezza.
L’appartamento, finemente rifinito e venduto completo di arredi su misura, è pronto per essere abitato senza necessità di ulteriori interventi. Ideale anche come investimento, con possibilità di acquisto soggetto a IVA tramite reverse charge.

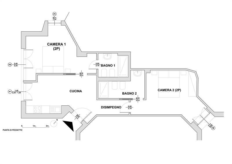
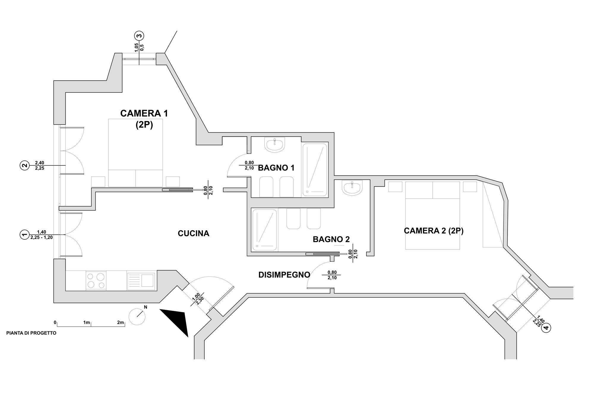
La soluzione si compone di un luminoso soggiorno con cucina a vista in muratura, due camere da letto, doppi servizi e un pratico balconcino. Gli ambienti sono progettati con attenzione al dettaglio e materiali di qualità, garantendo funzionalità e comfort. Il riscaldamento è centralizzato, mentre il nuovo sistema di raffrescamento autonomo, recentemente installato, è ad aria.

Il contesto condominiale rappresenta un vero punto di forza: il residence offre ampi spazi verdi, area giochi per bambini, campo da basket da pallavolo. A completare i servizi, sono presenti posti auto riservati ai residenti, rendendo l’ambiente sicuro, tranquillo e ideale per famiglie.

SERVIZI E COLLEGAMENTI
La zona è ottimamente servita: nelle immediate vicinanze si trovano supermercati, negozi, farmacie, scuole e centri sportivi. I collegamenti con il centro città sono eccellenti, così come con l’Università Bocconi, grazie alla vicinanza della metropolitana M2 Abbiategrasso (linea verde, a soli 2 minuti a piedi) e alle numerose linee di autobus, tra cui il tram 15 che raggiunge il Duomo passando direttamente dall’area universitaria.
Comodo anche l’accesso ai centri commerciali di Rozzano, all’Ospedale Humanitas, alle principali arterie stradali, all’area Portello e alla nuova zona della Fondazione Prada. Ottima opportunità anche per un investimento a reddito, con rendimenti già dimostrabili.

Soluzione ideale per famiglie, studenti, investitori e per chi desidera un appartamento moderno, pronto all’uso e inserito in un contesto residenziale di alta qualità.
Disponibilità dell’immobile: maggio 2026.
Caratteristiche principali
Codice:
Trilo_lassalle
Città:
Milano (Chiesa Rossa/ Cermenate/ Ripamonti)
Categoria:
3 locali
Spese condominiali:
2.600 € / anno
Locali:
3
Camere:
2
Bagni:
2
Mq:
67
Balconi:
1
Classe energetica:
E
Stato Immobile:
Ristrutturato
Grado:
Medio
Orientamento:
Nord Est
Lati Liberi:
2
Giardino:
Comune
Arredi:
Arredato
Tipo Cucina:
Angolo Cottura
Riscaldamento:
Centralizzato
Tipo Riscaldam.:
Caldaia
Tipo Impianto:
Pavimento
Fonte Energetica:
Gasolio
Acqua Calda:
Centralizzata
Raffrescamento:
Split
Infissi:
Alluminio Doppio Vetro
Serramenti:
Ottimo
Accessori
Aria Condizionata
Cancello Elettrico
Doppi Vetri
Fibra Ottica
Porta Blindata
Mappa
Video
Planimetrie
Cookie preference